Kropf Canadian Series Floor Plans

Kropf Canadian Series  Floor Plans

(Click images to enlarge and view a printable PDF)

 

4173C

4173C

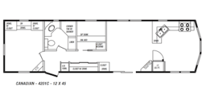
4201C

4201C

4261

4261

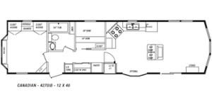
4270B

4270B

4270C

4270C

4270I

4270I

4270IB

4270IB

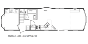
4353-rear-loft

4353-rear-loft

4407

4407

4496

4496

4527BURF

4527BURF

45501

45501

47211

47211

80121

80121

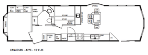
47751

47751